東莞電機按機座號大小的分類
點擊次數:
更新時間:2016-01-21 13:46:57 【
打印此頁】 【
關閉】
東莞電機按機座號大小可分為大、中、小共3各個等級:小型(<63mm);中型(≥355mm-630mm);大型(>630mm)。
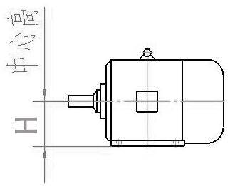
其中機座號的定義是:對于有底角的東莞電機(IM B3或IM B35等),為其軸中心線到底角平面的距離,該距離被稱為中心高,用字母H表示,單位為mm,為下圖所示;對于沒有底角的東莞電機(安裝方式為IM B5或IM V1等),為與其機殼內外圓相同的具有底角的電機中心高。

標簽:   東莞電機